︎
Our Studio
All Projects
Urban Planning
Public Buildings
Preservations
Mixed Use
Private Houses
Interior Design
Contact
HE
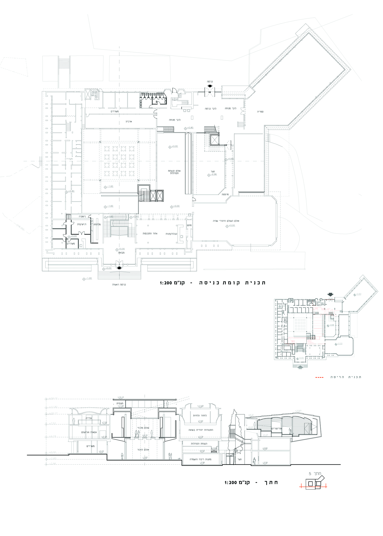
Holocaust Museum
“Lohamei HaGetaot” Kibbutz, Israel
Addition of a new wing to the existing museum.
Architects competition - Winning project.
Efrat-Kowalsky Architects and Arch. Dror Aviram.
Click to view the article in “Israeli Architecture” magazine
Click to view the article in “Bait-Venoy” magazine
© 2023 Dror Aviram, all rights reseved